Skip to content
765-414-1206
eric@horizoncustombuild.com
Horizon Custom Build new logo
  • Home
  • About
  • New Construction
  • Kitchens
  • Bathrooms
  • Decks & Porches
  • Our Process
  • Reviews
  • Blog
  • Contact

Secretariat Pool Pavilion

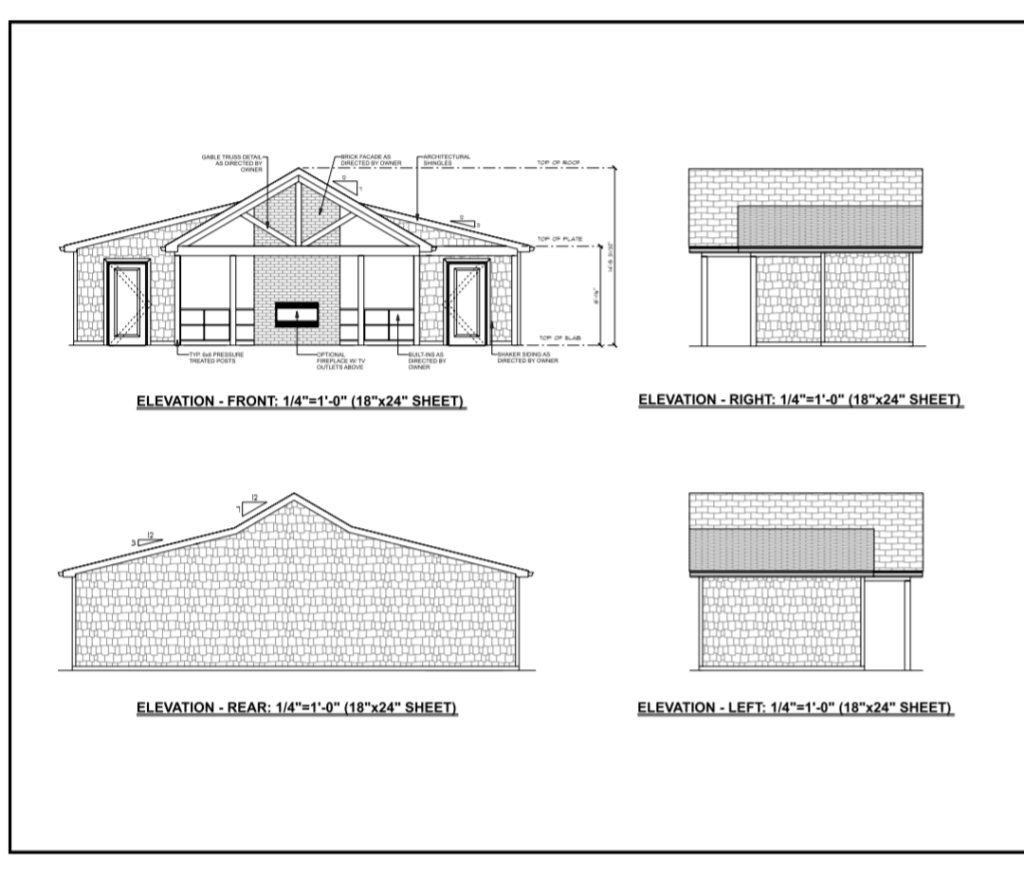
It’s hard to imagine this backyard without this pool house now.  It just seems to fit.  That wasn’t always the case. Dealing with the constraints of the existing pool location and property lines, we worked on a design that would deliver on the client’s main goals; outdoor entertaining space, storage for pool supplies, and a space for guests to change out of their bathing suits.  

With a budget of almost $100,000; we delivered a beautiful pool pavilion space.  The main entertaining space is roughly 20’ x 20’, with exterior grade cabinetry, gas fireplace, stone accent, and board and batten panels.  To the left, is a 13’ x 8’ conditioned storage shed, and to the right is a 8’ x 8’ conditioned changing room.   The exterior is finished with vinyl cedar impression siding and stone accents on the front.

View Photo Gallery

Ready to find out more?

Drop us a line today for a quote!

Contact Us

© 2026 Horizon Custom Build & Remodel. All Rights Reserved.

Scroll To Top